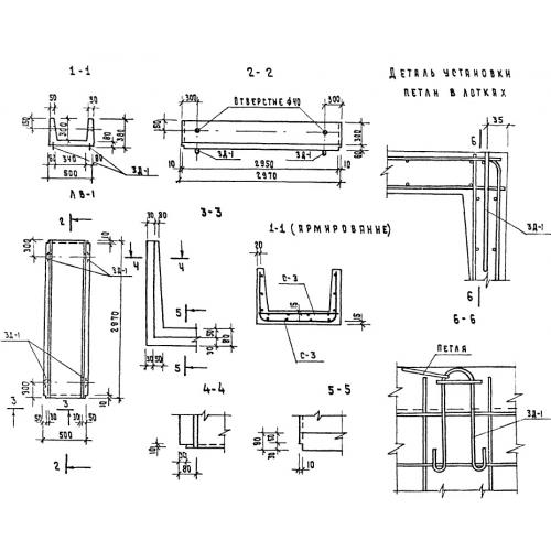
ЛБ-1

Чертеж изделия:
Характеристики изделия:
ПараметрЗначение
длина2970 мм
ширина500 мм
высота380 мм
вес500 кг
серияТП 320-55

ЛБ-1 Лотки железобетоные. Малые архитектурные формы и элементы благоустройства улиц, дорог, площадей по серии ТП 320-55.