ПСЛ 24
Характеристики изделия:
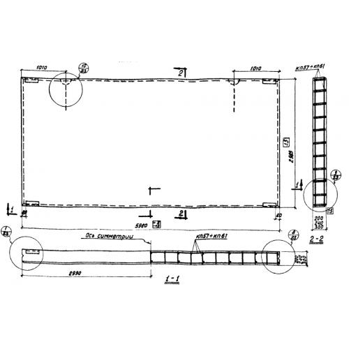
| Параметр | Значение |
|---|---|
| длина | 5980 мм |
| ширина | 240 мм |
| высота | 2985 мм |
| масса | 5800 кг |
| нормативный документ | Серия СТ 02-33 |
Цена:
Рассчитать стоимостьПСЛ 24 Панели наружные стеновые из легкого бетона по Серии СТ 02-33.
| Параметр | Значение |
|---|---|
| длина | 5980 мм |
| ширина | 240 мм |
| высота | 2985 мм |
| масса | 5800 кг |
| нормативный документ | Серия СТ 02-33 |
ПСЛ 24 Панели наружные стеновые из легкого бетона по Серии СТ 02-33.
