ПС

Чертеж изделия:
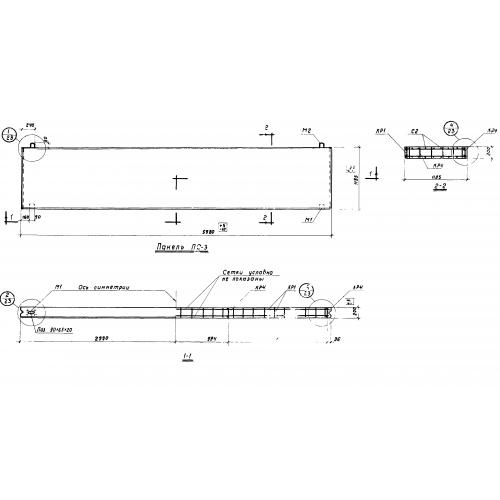
Характеристики изделия:
ПараметрЗначение
длина5980 мм
ширина1185 мм
высота200 мм
вес1000 кг
серияСТ 02-11/61

ПС Панель по серии СТ 02-11/61.