ПЛХ-7

Чертеж изделия:
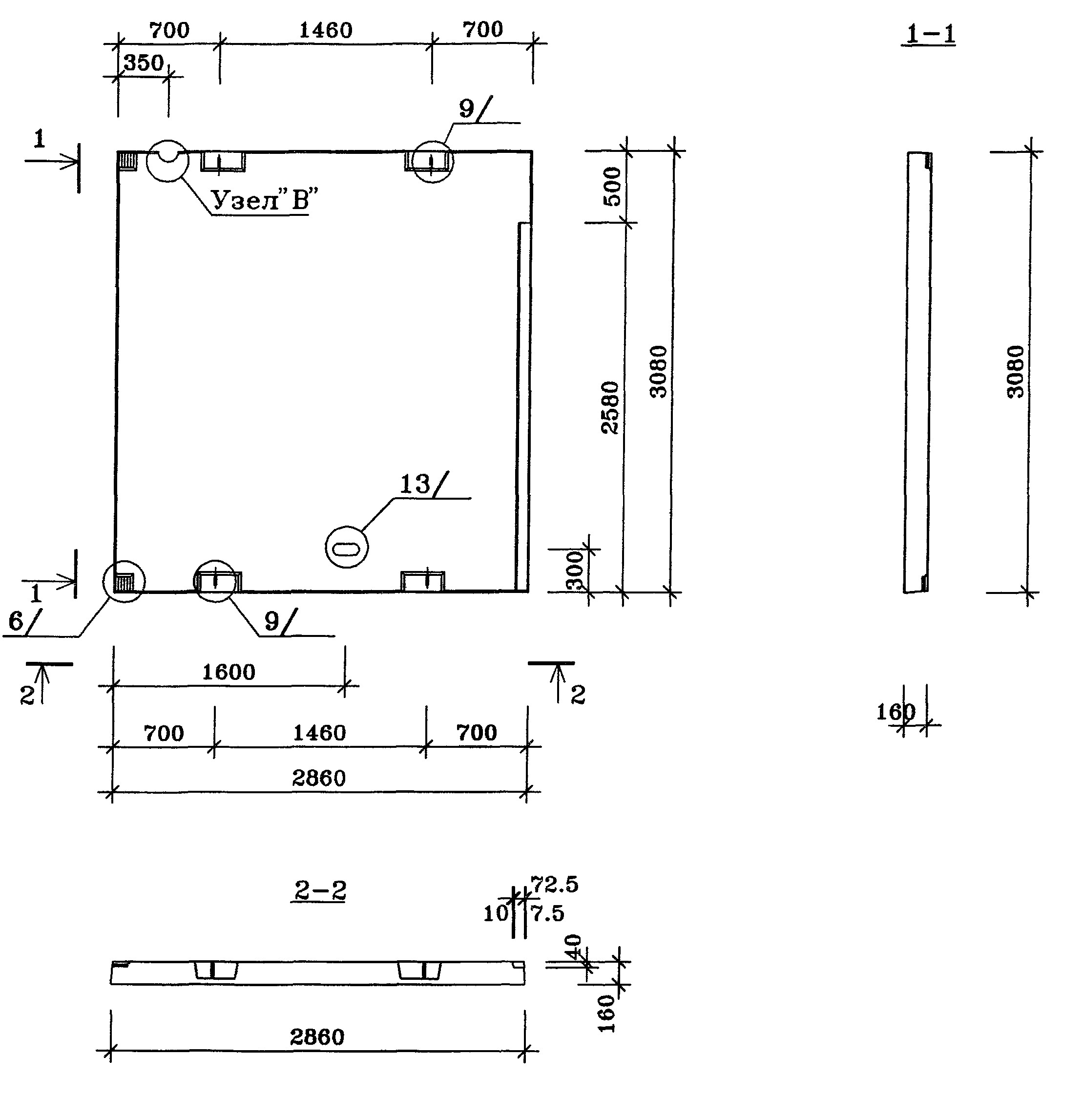
Характеристики изделия:
ПараметрЗначение
Длина L2860 мм
Ширина В3080 мм
Высота Н160 мм
Вес3340 кг
СерияИЖ 4.2-1
Норма погрузки на машину (20тн)6 (негабарит)
Вагонная норма погрузки-

Плита лифтового холла ПЛХ-7 изготавливаются по чертежам серии ИЖ 4.2-1 и предназначены для возведения лестниц при строительстве жилых зданий с высотой потолка 3 метра.