ЛМ 2-г
Характеристики изделия:
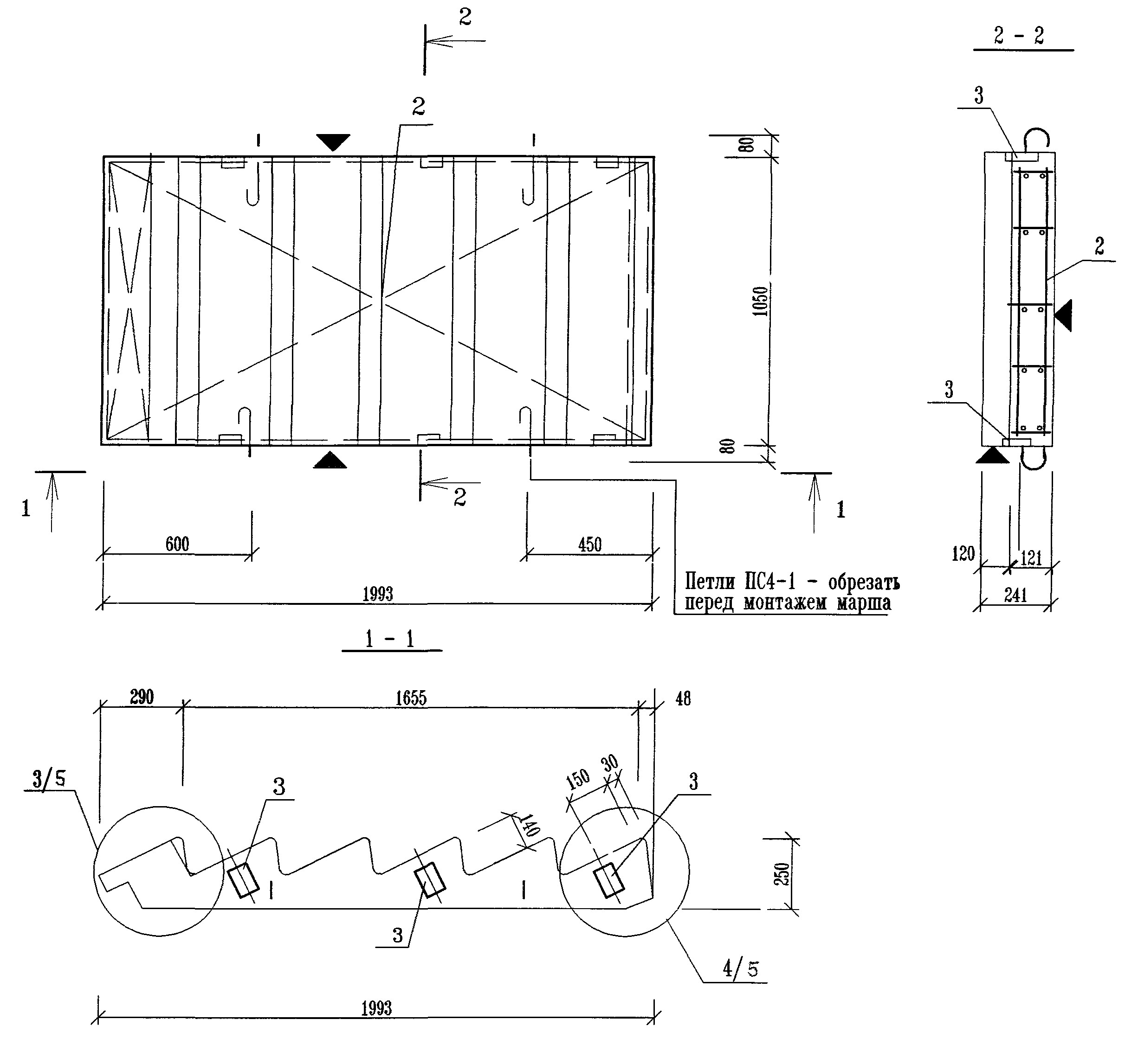
| Параметр | Значение |
|---|---|
| Длина L | 1993 мм |
| Ширина В | 1050 мм |
| Высота Н | 241 мм |
| Вес | 910 кг |
| Серия | ИЖ 4.2-1 |
| Норма погрузки на машину (20тн) | 20 шт |
| Вагонная норма погрузки | - |
Цена:
Рассчитать стоимостьЛестничный марш ЛМ 2-г представленные в серии ИЖ 4.2-1 изготовлены без фризовых ступеней и с гладкой поверхностью бетона. Используются марши при строительстве лестниц в жилых зданиях с высотой 3 метра.
