2ПСТ 2 Стеновые панели

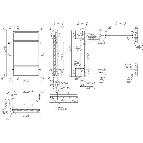
Чертеж изделия:
Характеристики изделия:
ПараметрЗначение
длина3025 мм
ширина490 мм
высота4850 мм
масса3390 кг
нормативный документСерия 7075-М

2ПСТ 2   Трехслойные стеновые панели торцевые по Серии 7075-М.