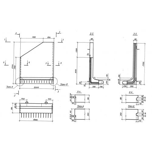
НГ 25
Характеристики изделия:
| Параметр | Значение |
|---|---|
| длина | 2000 мм |
| ширина | 870 мм |
| высота | 2500 мм |
| вес | 2480 кг |
| серия | 3.820.1-73 |
Цена:
Рассчитать стоимостьНГ 25 Г-образная конструкция с ныряющей вертикальной стенкой по серии 3.820.1-73.
| Параметр | Значение |
|---|---|
| длина | 2000 мм |
| ширина | 870 мм |
| высота | 2500 мм |
| вес | 2480 кг |
| серия | 3.820.1-73 |
НГ 25 Г-образная конструкция с ныряющей вертикальной стенкой по серии 3.820.1-73.
