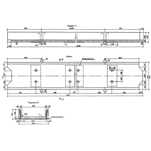
ЛРО 6.40
Характеристики изделия:
| Параметр | Значение |
|---|---|
| длина | 4100 мм |
| ширина | 740 мм |
| высота | 280 мм |
| масса | 700 кг |
| нормативный документ | Серия 3.820.1-69 |
Цена:
Рассчитать стоимостьЛРО 6.40 Лотки с разгрузочными отверстиями по Серии 3.820.1-69.
| Параметр | Значение |
|---|---|
| длина | 4100 мм |
| ширина | 740 мм |
| высота | 280 мм |
| масса | 700 кг |
| нормативный документ | Серия 3.820.1-69 |
ЛРО 6.40 Лотки с разгрузочными отверстиями по Серии 3.820.1-69.
