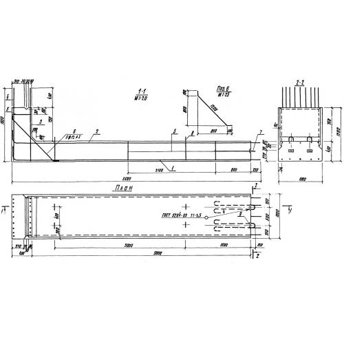
СБ-50

Чертеж изделия:
Характеристики изделия:
ПараметрЗначение
длина1000 мм
ширина1650 мм
высота5680 мм
масса6770 кг
нормативный документСерия 3.820.1-29

СБ-50 Стеновые блоки по Серии 3.820.1-29.