РПу 10-15
Характеристики изделия:
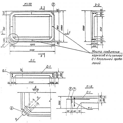
| Параметр | Значение |
|---|---|
| длина | 1500 мм |
| ширина | 1000 мм |
| высота | 200 мм |
| масса | 490 кг |
| нормативный документ | Серия 3.820-6 |
Цена:
Рассчитать стоимостьРПу 10-15 Ребристые плиты усиленные по Серии 3.820-6.
| Параметр | Значение |
|---|---|
| длина | 1500 мм |
| ширина | 1000 мм |
| высота | 200 мм |
| масса | 490 кг |
| нормативный документ | Серия 3.820-6 |
РПу 10-15 Ребристые плиты усиленные по Серии 3.820-6.
