ПТ 15-20

Чертеж изделия:
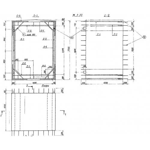
Характеристики изделия:
ПараметрЗначение
длина1500 мм
ширина1740 мм
высота2400 мм
масса4825 кг
нормативный документСерия 3.820-14

ПТ 15-20 Прямоуголные трубы усиленные по  Серии 3.820-14.