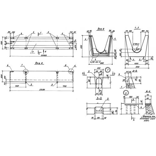
ЛК 298.55.50
Характеристики изделия:
| Параметр | Значение |
|---|---|
| длина | 2980 мм |
| ширина | 550 мм |
| высота | 500 мм |
| вес | 950 кг |
| серия | 3.818.9-2 |
Цена:
Рассчитать стоимостьЛК 298.55.50 Лотки для каналов навозоудаления по серии 3.818.9-2.
| Параметр | Значение |
|---|---|
| длина | 2980 мм |
| ширина | 550 мм |
| высота | 500 мм |
| вес | 950 кг |
| серия | 3.818.9-2 |
ЛК 298.55.50 Лотки для каналов навозоудаления по серии 3.818.9-2.
