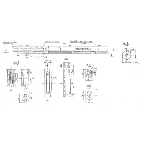
СВ 80
Характеристики изделия:
| Параметр | Значение |
|---|---|
| длина | 8000 мм |
| ширина | 320 мм |
| высота | 370 мм |
| вес | 700 кг |
| серия | 3.507 КЛ-10 |
Цена:
Рассчитать стоимостьСВ 80 Стойки вибрированные по серии 3.507 КЛ-10.
| Параметр | Значение |
|---|---|
| длина | 8000 мм |
| ширина | 320 мм |
| высота | 370 мм |
| вес | 700 кг |
| серия | 3.507 КЛ-10 |
СВ 80 Стойки вибрированные по серии 3.507 КЛ-10.
