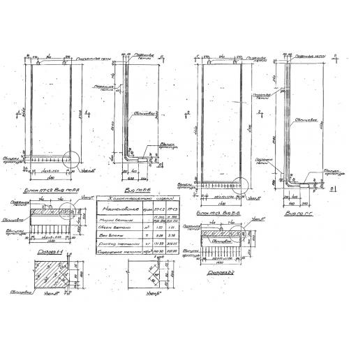
ПТ-С2

Чертеж изделия:
Характеристики изделия:
ПараметрЗначение
длина1480 мм
ширина950 мм
высота3700 мм
масса3050 кг
нормативный документСерия 3.507-1

ПТ-С2 Стеновой блок подземных тоннелей по Серии 3.507-1.