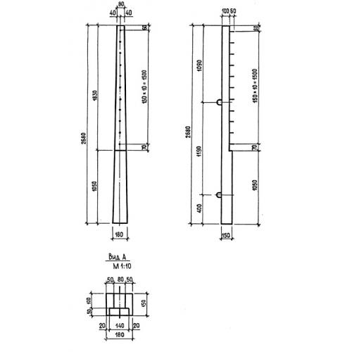
СПО ограждение

Чертеж изделия:
Характеристики изделия:
ПараметрЗначение
длина2680 мм
ширина150 мм
высота180 мм
вес110 кг
нормативный документСерия 3.503.1-89

СПО  Столбы железобетонные по Серии 3.503.1-89.