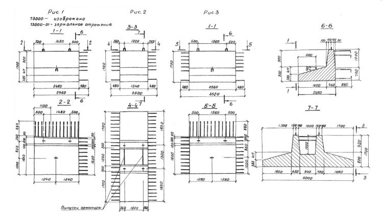
ФП-2
Характеристики изделия:
| Параметр | Значение |
|---|---|
| длина | 3520 мм |
| ширина | 2930 мм |
| высота | 1720 мм |
| масса | 10500 кг |
| нормативный документ | Серия 3.503-49 |
Цена:
Рассчитать стоимостьФП-2 Сборные блоки фундамента промежуточные по Серии 3.503-49.
| Параметр | Значение |
|---|---|
| длина | 3520 мм |
| ширина | 2930 мм |
| высота | 1720 мм |
| масса | 10500 кг |
| нормативный документ | Серия 3.503-49 |
ФП-2 Сборные блоки фундамента промежуточные по Серии 3.503-49.