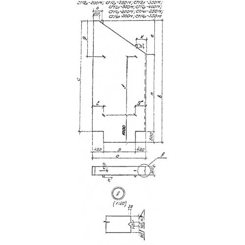
СТ 14 стенка

Чертеж изделия:
Характеристики изделия:
ПараметрЗначение
длина5100 мм
ширина2850 мм
высота300 мм
масса8800 кг
нормативный документСерия 3.501.1-179.94

СТ 14 Откосные стенки по Серии 3.501.1-179.94.