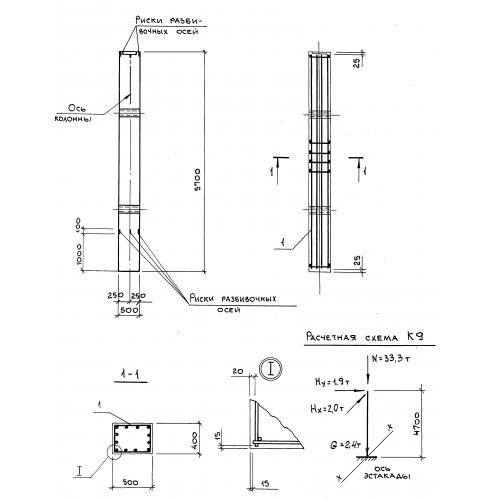
К 9

Чертеж изделия:
Характеристики изделия:
ПараметрЗначение
длина5700 мм
ширина500 мм
высота400 мм
вес2900 кг
серия3.016.1-17.93

К 9 Колонны по серии 3.016.1-17.93.