Тв 6

Чертеж изделия:
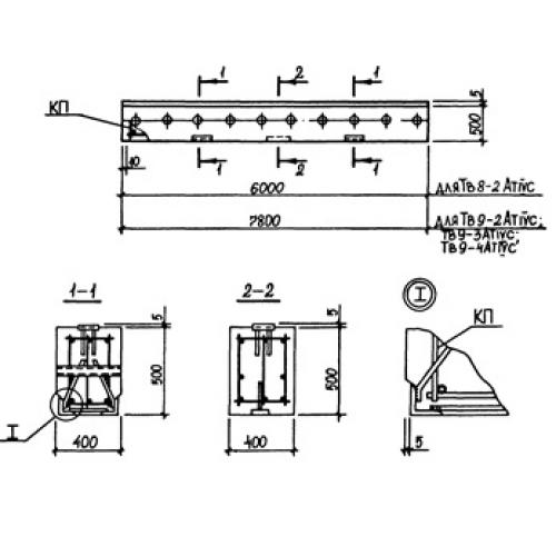
Характеристики изделия:
ПараметрЗначение
длина7800 мм
ширина400 мм
высота500 мм
масса3900 кг
нормативный документСерия 3.015-3/92

Тв 6  Траверсы Серия 3.015-3/92.