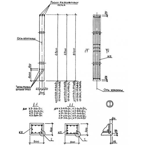
К 9

Чертеж изделия:
Характеристики изделия:
ПараметрЗначение
длина8100 мм
ширина500 мм
высота400 мм
масса4100 кг
нормативный документСерия 3.015-3/92

К 9  Колонны Серия 3.015-3/92.