ОП 3
Характеристики изделия:
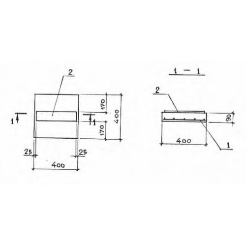
| Параметр | Значение |
|---|---|
| длина | 400 мм |
| ширина | 400 мм |
| высота | 90 мм |
| вес | 40 кг |
| серия | 3.006-2 |
Цена:
Рассчитать стоимостьОП 3 Опорные подушки по серии 3.006-2.
| Параметр | Значение |
|---|---|
| длина | 400 мм |
| ширина | 400 мм |
| высота | 90 мм |
| вес | 40 кг |
| серия | 3.006-2 |
ОП 3 Опорные подушки по серии 3.006-2.
