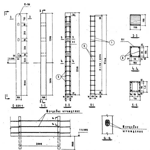
С 250

Чертеж изделия:
Характеристики изделия:
ПараметрЗначение
длина2500 мм
ширина160 мм
высота160 мм
вес152,5 кг
серия2.800-2

С 250 Стойки железобетонные с крестообразным поперечным сечением по серии 2.800-2.