БС 9
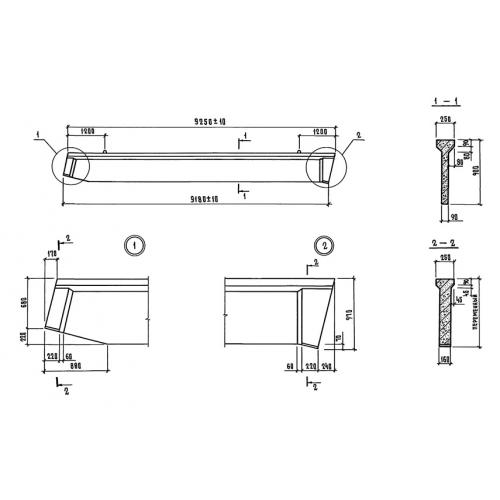
Характеристики изделия:
| Параметр | Значение |
|---|---|
| длина | 9420 мм |
| ширина | 250 мм |
| высота | 900 мм |
| вес | 2400 кг |
| серия | 1.862.1-8.94 |
Цена:
Рассчитать стоимостьБС 9 Балки стропильные по серии 1.862.1-8.94.
| Параметр | Значение |
|---|---|
| длина | 9420 мм |
| ширина | 250 мм |
| высота | 900 мм |
| вес | 2400 кг |
| серия | 1.862.1-8.94 |
БС 9 Балки стропильные по серии 1.862.1-8.94.
