БК 12 балки подкрановые
Характеристики изделия:
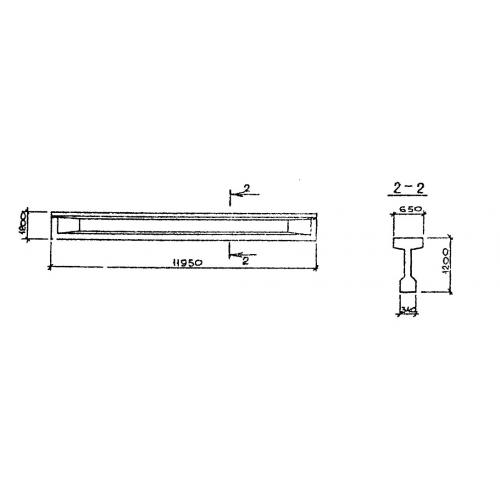
| Параметр | Значение |
|---|---|
| длина | 11950 мм |
| ширина | 650 мм |
| высота | 1200 мм |
| масса | 10300 мм |
| нормативный документ | Серия 1.426.1-4 |
Цена:
Рассчитать стоимостьБК 12 Подкрановые балки Серия 1.426.1-4.
| Параметр | Значение |
|---|---|
| длина | 11950 мм |
| ширина | 650 мм |
| высота | 1200 мм |
| масса | 10300 мм |
| нормативный документ | Серия 1.426.1-4 |
БК 12 Подкрановые балки Серия 1.426.1-4.
