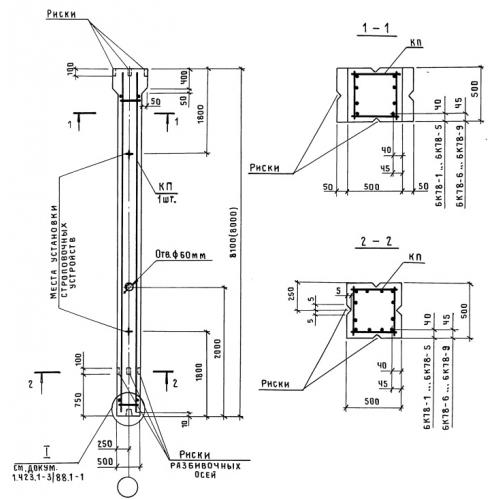
К 78 колонны
Характеристики изделия:
| Параметр | Значение |
|---|---|
| длина | 8000 мм |
| ширина | 500 мм |
| высота | 500 мм |
| масса | 5000 кг |
| нормативный документ | Серия 1.423-3 |
Цена:
Рассчитать стоимостьК 78 Колонны Серия 1.423-3.
| Параметр | Значение |
|---|---|
| длина | 8000 мм |
| ширина | 500 мм |
| высота | 500 мм |
| масса | 5000 кг |
| нормативный документ | Серия 1.423-3 |
К 78 Колонны Серия 1.423-3.
