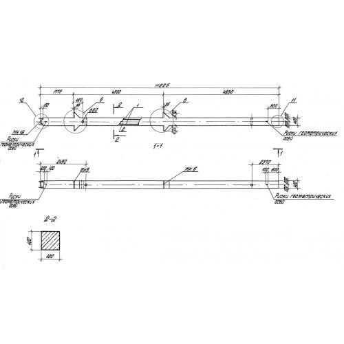
К 14 колонны

Чертеж изделия:
Характеристики изделия:
ПараметрЗначение
длина11225 мм
ширина400 мм
высота400 мм
масса4500 кг
нормативный документСерия 1.420-35.95

К 14  Колонны Серия 1.420-35.95.