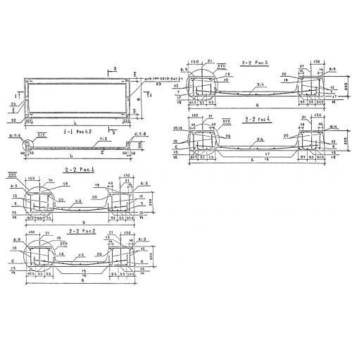
ПР 72.12

Чертеж изделия:
Характеристики изделия:
ПараметрЗначение
длина7180 мм
ширина1190 мм
высота220 мм
вес3025 кг
серия1.220.1-2

ПР 72.12 Панели перекрытия ребристые по серии 1.220.1-2.