ПР 48-15
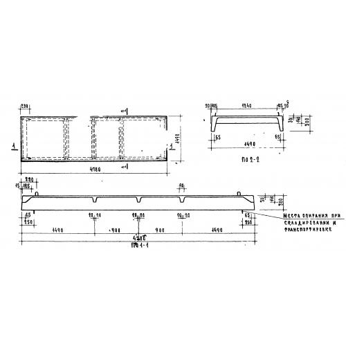
Характеристики изделия:
| Параметр | Значение |
|---|---|
| длина | 4780 мм |
| ширина | 1490 мм |
| высота | 300 мм |
| вес | 1415 кг |
| серия | 1.165-1 |
Цена:
Рассчитать стоимостьПР 48-15 Панели ребристые по серии 1.165-1.
| Параметр | Значение |
|---|---|
| длина | 4780 мм |
| ширина | 1490 мм |
| высота | 300 мм |
| вес | 1415 кг |
| серия | 1.165-1 |
ПР 48-15 Панели ребристые по серии 1.165-1.
