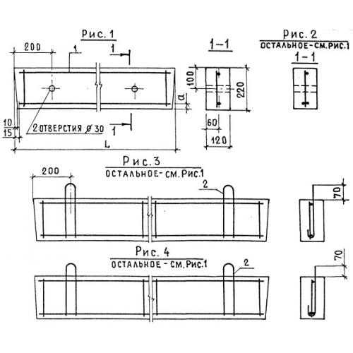
БУ 24

Чертеж изделия:
Характеристики изделия:
ПараметрЗначение
длина2450 мм
ширина120 мм
высота220 мм
вес160 кг
серия1.139-1

БУ 24 Перемычки брусковые усиленные по серии 1.139-1.