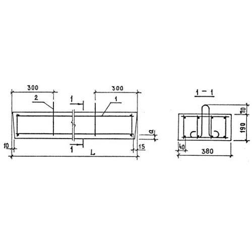
БП 22

Чертеж изделия:
Характеристики изделия:
ПараметрЗначение
длина2200 мм
ширина380 мм
высота190 мм
вес396 кг
серия1.139-1

БП 22 Плитные перемычки по серии 1.139-1.