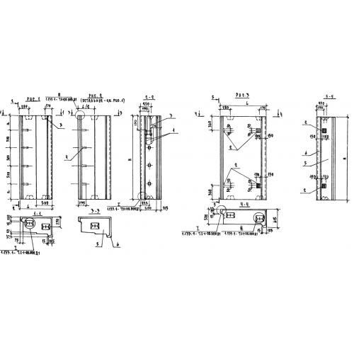
1БНУ 12.25.50

Чертеж изделия:
Характеристики изделия:
ПараметрЗначение
длина1180 мм
ширина500 мм
высота2540 мм
вес2060 кг
серия1.133.1-7

1БНУ 12.25.50 Блоки наружных стен простеночные угловые по серии 1.133.1-7.