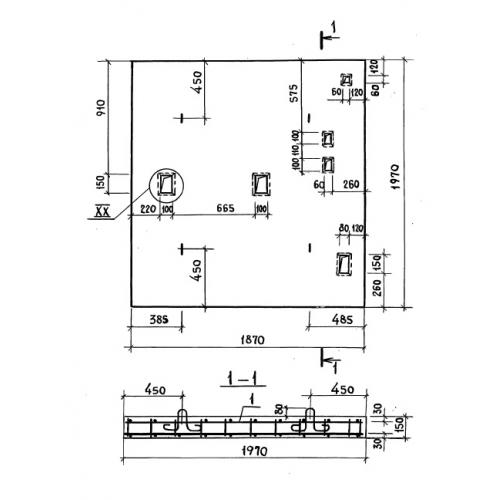
ПЛ 50-19

Чертеж изделия:
Характеристики изделия:
ПараметрЗначение
длина1870 мм
ширина1970 мм
высота150 мм
вес1400 кг
серия1.089.1-2

ПЛ 50-19 Плиты перекрытия над шахтой  пассажирского лифта по серии 1.089.1-2.