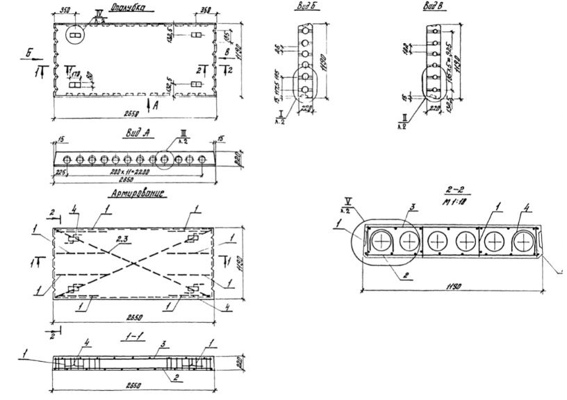
ПК 27.12 плиты рядовые

Чертеж изделия:
Характеристики изделия:
ПараметрЗначение
длина2650 мм
ширина1190 мм
высота220 мм
масса900 кг
нормативный документСерия 1.041.1-3

ПК 27.12  Плиты рядовые Серия 1.041.1-3.